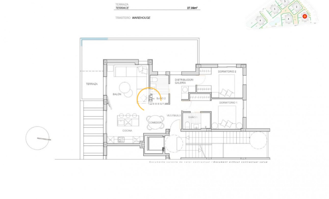
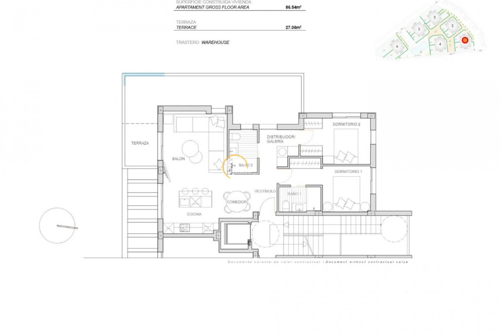
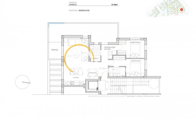
APARTAMENTOS DE OBRA NUEVA EN COMPLEJO PRIVADO EN LA PROVINCIA DE MURCIA~ ~ Complejo residencial de nueva construcción de 6 bloques, un total de 42 apartamentos.~ ~ Preciosos apartamentos de 3 y 2 dormitorios y 2 baños con vistas al gran lago y zonas verdes de este gran complejo de lujo.~ ~ Apartamentos en planta baja con jardín privado, apartamentos en planta alta con solarium privado. ~ ~ El complejo cuenta con una piscina comunitaria y todos los apartamentos tienen una plaza de aparcamiento y un trastero.~ ~ ~ Situado en un complejo privado y cerrado, con una entrada de acceso principal y seguridad 24 horas. El complejo está diseñado en torno a una impresionante zona verde de 126.000 m2.~ ~ Cuenta con rutas de senderismo y ciclismo, instalaciones deportivas, pistas de pádel y tenis, un campo de minigolf, jardines, parques para perros, zonas de ocio, casa club.... También en la zona central se encuentra la joya del complejo, un lago artificial cristalino de casi 17.000m2 de superficie de agua, rodeado de playas de arena blanca y palmeras, que trae un trozo del Caribe a la Región de Murcia.~ ~ Hay 2 islas en el lago, una de ellas tiene su propio bar, también hay "Chiringuitos de playa" repartidos por el lago.~ ~ El complejo está estratégicamente situado a menos de 4 km de la playa y de la localidad de Los Alcázares, donde se pueden practicar diversos deportes náuticos, rodeado de varios campos de golf y de la ciudad de Cartagena a menos de 15 minutos en coche y a 22 km del aeropuerto de Murcia, teniendo por tanto una amplia oferta cultural, gastronómica y deportiva al alcance.~